jo meyer
|
architekt
Auswahl
|
Überblick
|
Information
<
>
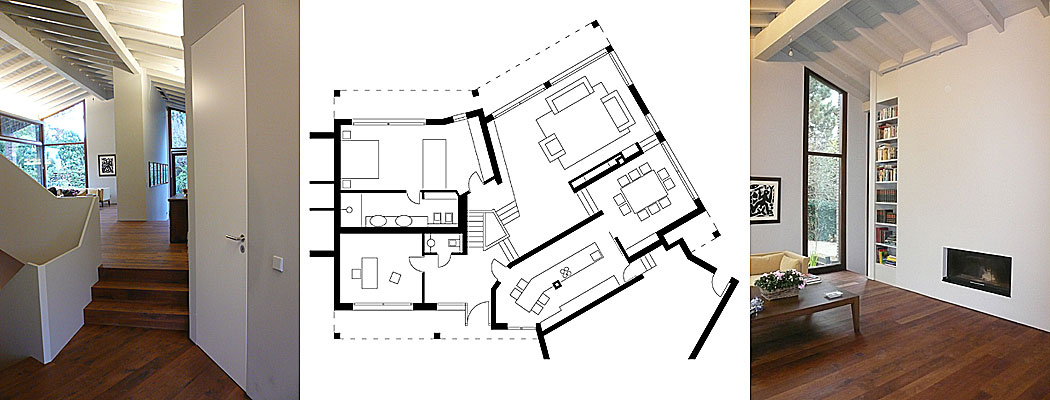
Landhaus in grau für Inventar und Ausblick
Umbau Wohnhaus in Meerbusch, mit Marie-Céline Schäfer, 2008